Empresa de blindagem de guarita

Clique nas imagens para ampliar

ESTÁ PROUCURANDO POR EMPRESA DE BLINDAGEM DE GUARITA?

A Modellaço é também uma empresa de blindagem de guarita além de fabricar outros diversos produtos de segurança e blindagem. Como empresa de blindagem de guarita, trabalhamos com a blindagem de guaritas do tipo condomínios, guaritas elevadas, guaritas térreas e guarita moveis.

Nossa empresa de blindagem de guarita está apta ao fornecimento de produtos e materiais em diferentes níveis de proteção balística, sendo eles:

  • ível I;
  • ível II;
  • ível III-A;
  • ível III.

A decisão final quanto ao nível de blindagem caberá ao nosso cliente, porém podemos oferecer consultoria especializada para ajudar nessa e em outras decisões.

Na empresa de blindagem de guarita Modellaço, utilizamos apenas materiais certificados e aprovados pelos órgãos responsáveis como o Ministério de defesa – Exército Brasileiro. Além disso em nossa empresa de blindagem de guarita, criamos todos nossos projetos respeitando as diretrizes e normas nacionais e internacionais como por exemplo a ABNT NBR 15000/2005. Todas essas medidas são tomadas para garantir que nossos clientes recebam produtos de qualidade comprovada, que realmente cumpram suas funções com excelência caso sejam solicitadas em um momento de risco.

Além de atuar como empresa de blindagem de guarita, produzimos também diversas outras soluções de segurança e blindagem arquitetônica, entre elas:

  • Porta blindada;
  • Porta anti-intrusão;
  • Janela blindada;
  • Janela anti-intrusão;
  • Divisória blindada;
  • Vidro blindado;
  • Gaveta passa volume blindada;
  • Entre outros.

Para garantir que nossos clientes venham a adquirir os produtos que realmente atendam com excelência suas necessidades, a Modellaço oferece também consultoria especializada para definição de futuros projetos. Em visitas agendadas, nossos profissionais qualificados irão realizar o levantamento de todas as informações referentes ao projeto de nosso cliente, com essas informações em mãos, nossa equipe poderá mensurar e ofertar o produto que melhor atendera as necessidades de desse cliente, com qualidade, preço justo e prazo de entrega diferenciado do praticado pelo mercado atualmente.

Visando um ótimo relacionamento desde o início, a Modellaço disponibiliza sua equipe para sanar qualquer tipo de dúvidas, fornecer orçamentos para qualquer um de nossos produtos ou avaliar a viabilidade de seus projetos. Para isso basta entrar em contato conosco, estamos ansiosos para atendê-los sempre da melhor maneira possível.


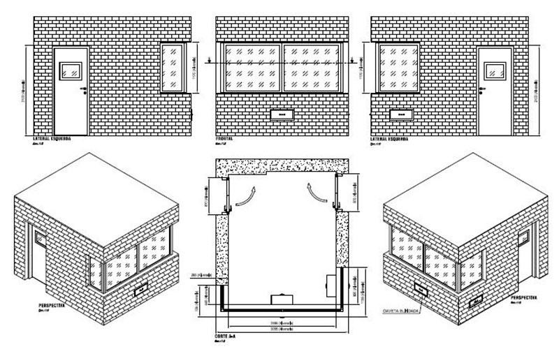
Guarita Blindada

Para saber mais sobre Empresa de blindagem de guarita

Ligue para 11 ou clique aqui e entre em contato por email.

Solicite um orçamento



Regiões onde a Modellaço atende Empresa de blindagem de guarita:


  • Aclimação
  • Bela Vista
  • Bom Retiro
  • Brás
  • Cambuci
  • Centro
  • Consolação
  • Higienópolis
  • Glicério
  • Liberdade
  • Luz
  • Pari
  • República
  • Santa Cecília
  • Santa Efigênia
  • Vila Buarque
  • Brasilândia
  • Cachoeirinha
  • Casa Verde
  • Imirim
  • Jaçanã
  • Jardim São Paulo
  • Lauzane Paulista
  • Mandaqui
  • Santana
  • Tremembé
  • Tucuruvi
  • Vila Guilherme
  • Vila Gustavo
  • Vila Maria
  • Vila Medeiros
  • Água Branca
  • Bairro do Limão
  • Barra Funda
  • Alto da Lapa
  • Alto de Pinheiros
  • Butantã
  • Freguesia do Ó
  • Jaguaré
  • Jaraguá
  • Jardim Bonfiglioli
  • Lapa
  • Pacaembú
  • Perdizes
  • Perús
  • Pinheiros
  • Pirituba
  • Raposo Tavares
  • Rio Pequeno
  • São Domingos
  • Sumaré
  • Vila Leopoldina
  • Vila Sonia
  • Aeroporto
  • Água Funda
  • Brooklin
  • Campo Belo
  • Campo Grande
  • Campo Limpo
  • Capão Redondo
  • Cidade Ademar
  • Cidade Dutra
  • Cidade Jardim
  • Grajaú
  • Ibirapuera
  • Interlagos
  • Ipiranga
  • Itaim Bibi
  • Jabaquara
  • Jardim Ângela
  • Jardim América
  • Jardim Europa
  • Jardim Paulista
  • Jardim Paulistano
  • Jardim São Luiz
  • Jardins
  • Jockey Club
  • M'Boi Mirim
  • Moema
  • Morumbi
  • Parelheiros
  • Pedreira
  • Sacomã
  • Santo Amaro
  • Saúde
  • Socorro
  • Vila Andrade
  • Vila Mariana
  • Água Rasa
  • Anália Franco
  • Aricanduva
  • Artur Alvim
  • Belém
  • Cidade Patriarca
  • Cidade Tiradentes
  • Engenheiro Goulart
  • Ermelino Matarazzo
  • Guianazes
  • Itaim Paulista
  • Itaquera
  • Jardim Iguatemi
  • José Bonifácio
  • Moóca
  • Parque do Carmo
  • Parque São Lucas
  • Parque São Rafael
  • Penha
  • Ponte Rasa
  • São Mateus
  • São Miguel Paulista
  • Sapopemba
  • Tatuapé
  • Vila Carrão
  • Vila Curuçá
  • Vila Esperança
  • Vila Formosa
  • Vila Matilde
  • Vila Prudente
  • São Caetano do sul
  • São Bernardo do Campo
  • Santo André
  • Diadema
  • Guarulhos
  • Suzano
  • Ribeirão Pires
  • Mauá
  • Embu
  • Embu Guaçú
  • Embu das Artes
  • Itapecerica da Serra
  • Osasco
  • Barueri
  • Jandira
  • Cotia
  • Itapevi
  • Santana de Parnaíba
  • Caierias
  • Franco da Rocha
  • Taboão da Serra
  • Cajamar
  • Arujá
  • Alphaville
  • Mairiporã
  • ABC
  • ABCD
  • Bertioga
  • Cananéia
  • Caraguatatuba
  • Cubatão
  • Guarujá
  • Ilha Comprida
  • Iguape
  • Ilhabela
  • Itanhaém
  • Mongaguá
  • Riviera de São Lourenço
  • Santos
  • São Vicente
  • Praia Grande
  • Ubatuba
  • São Sebastião
  • Peruíbe

chamar no WhatsApp
chamar no WhatsApp
Comercial Modellaço www.modellaco.com.br Online
Fale com a gente pelo WhatsApp
×