Blindagem arquitetônica em sp

Clique nas imagens para ampliar

OFERECEMOS SERVIÇOS DE BLINDAGEM ARQUITETÔNICA EM SP

Cresce cada dia mais a procura pelos serviços de blindagem arquitetônica em SP, com o aumento da violência, dos assaltos a condomínios e a comércios, a população procura saídas para aumentar a sua segurança, de seus entes queridos e de seu patrimônio.

A Modellaço oferece a seus clientes as mais variadas soluções para blindagem arquitetônica em SP, contando em sua linha por exemplo com:

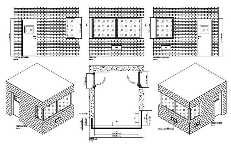
  • Guaritas elevadas;
  • Gavetas passa volumes;
  • Portas blindadas;
  • Janelas blindadas;
  • Blindagem de guarita condomínio;
  • Divisórias blindadas;
  • Entre outras.

A blindagem arquitetônica em SP é assunto sério, por isso procure apenas por produtos com procedência comprovada. A Modellaço seguindo as diretrizes e normas nacionais e internacionais, está apta ao fornecimento de produtos blindados em diferentes níveis de proteção balística, entre eles:

  • Nível I;
  • Nível II;
  • Nível III-A;
  • Nível III.

Além disso, para fabricação de nossos produtos de blindagem arquitetônica em SP utilizamos apenas materiais aprovados e certificados pelos órgãos responsáveis como o Ministério de Defesa – Exército Brasileiro. Essas medidas garantem que ao adquirir um produto Modellaço de blindagem arquitetônica em SP, nossos clientes terão um produto de qualidade, com preço justo e que cumpra com excelência suas funções caso requisitadas.

A Modellaço visando a agilidade de fabricação e entrega, conta com uma grande variedade de produtos padrões de blindagem arquitetônica em SP na sua linha, porém contamos também com uma qualificada equipe de engenharia preparada para criação de projetos especiais que atendam às necessidades individuais de cada um de nossos clientes.

Em muitos casos, oferecemos a nossos clientes modelos 3D realísticos de seus produtos criados em softwares específicos, com isso nossos clientes podem visualizar seus produtos como ficarão quando acabados, antes mesmo do início de sua fabricação, fornecendo segurança na aprovação de seus projetos e agilidade nos prazos de entrega.

Caso tenha algum projeto de blindagem arquitetônica, solicite um de nossos consultores, enviaremos um de nossos profissionais qualificados para uma avaliação. Entre em contato conosco, tire todas suas dúvidas referentes a blindagem arquitetônica em SP, solicite um orçamento para um de nossos produtos. A equipe Modellaço está ansiosa por atendê-los sempre da melhor maneira possível.

Para saber mais sobre Blindagem arquitetônica em sp

Ligue para 11 ou clique aqui e entre em contato por email.

Solicite um orçamento



Regiões onde a Modellaço atende Blindagem arquitetônica em sp:


  • Aclimação
  • Bela Vista
  • Bom Retiro
  • Brás
  • Cambuci
  • Centro
  • Consolação
  • Higienópolis
  • Glicério
  • Liberdade
  • Luz
  • Pari
  • República
  • Santa Cecília
  • Santa Efigênia
  • Vila Buarque
  • Brasilândia
  • Cachoeirinha
  • Casa Verde
  • Imirim
  • Jaçanã
  • Jardim São Paulo
  • Lauzane Paulista
  • Mandaqui
  • Santana
  • Tremembé
  • Tucuruvi
  • Vila Guilherme
  • Vila Gustavo
  • Vila Maria
  • Vila Medeiros
  • Água Branca
  • Bairro do Limão
  • Barra Funda
  • Alto da Lapa
  • Alto de Pinheiros
  • Butantã
  • Freguesia do Ó
  • Jaguaré
  • Jaraguá
  • Jardim Bonfiglioli
  • Lapa
  • Pacaembú
  • Perdizes
  • Perús
  • Pinheiros
  • Pirituba
  • Raposo Tavares
  • Rio Pequeno
  • São Domingos
  • Sumaré
  • Vila Leopoldina
  • Vila Sonia
  • Aeroporto
  • Água Funda
  • Brooklin
  • Campo Belo
  • Campo Grande
  • Campo Limpo
  • Capão Redondo
  • Cidade Ademar
  • Cidade Dutra
  • Cidade Jardim
  • Grajaú
  • Ibirapuera
  • Interlagos
  • Ipiranga
  • Itaim Bibi
  • Jabaquara
  • Jardim Ângela
  • Jardim América
  • Jardim Europa
  • Jardim Paulista
  • Jardim Paulistano
  • Jardim São Luiz
  • Jardins
  • Jockey Club
  • M'Boi Mirim
  • Moema
  • Morumbi
  • Parelheiros
  • Pedreira
  • Sacomã
  • Santo Amaro
  • Saúde
  • Socorro
  • Vila Andrade
  • Vila Mariana
  • Água Rasa
  • Anália Franco
  • Aricanduva
  • Artur Alvim
  • Belém
  • Cidade Patriarca
  • Cidade Tiradentes
  • Engenheiro Goulart
  • Ermelino Matarazzo
  • Guianazes
  • Itaim Paulista
  • Itaquera
  • Jardim Iguatemi
  • José Bonifácio
  • Moóca
  • Parque do Carmo
  • Parque São Lucas
  • Parque São Rafael
  • Penha
  • Ponte Rasa
  • São Mateus
  • São Miguel Paulista
  • Sapopemba
  • Tatuapé
  • Vila Carrão
  • Vila Curuçá
  • Vila Esperança
  • Vila Formosa
  • Vila Matilde
  • Vila Prudente
  • São Caetano do sul
  • São Bernardo do Campo
  • Santo André
  • Diadema
  • Guarulhos
  • Suzano
  • Ribeirão Pires
  • Mauá
  • Embu
  • Embu Guaçú
  • Embu das Artes
  • Itapecerica da Serra
  • Osasco
  • Barueri
  • Jandira
  • Cotia
  • Itapevi
  • Santana de Parnaíba
  • Caierias
  • Franco da Rocha
  • Taboão da Serra
  • Cajamar
  • Arujá
  • Alphaville
  • Mairiporã
  • ABC
  • ABCD
  • Bertioga
  • Cananéia
  • Caraguatatuba
  • Cubatão
  • Guarujá
  • Ilha Comprida
  • Iguape
  • Ilhabela
  • Itanhaém
  • Mongaguá
  • Riviera de São Lourenço
  • Santos
  • São Vicente
  • Praia Grande
  • Ubatuba
  • São Sebastião
  • Peruíbe

chamar no WhatsApp
chamar no WhatsApp
Comercial Modellaço www.modellaco.com.br Online
Fale com a gente pelo WhatsApp
×